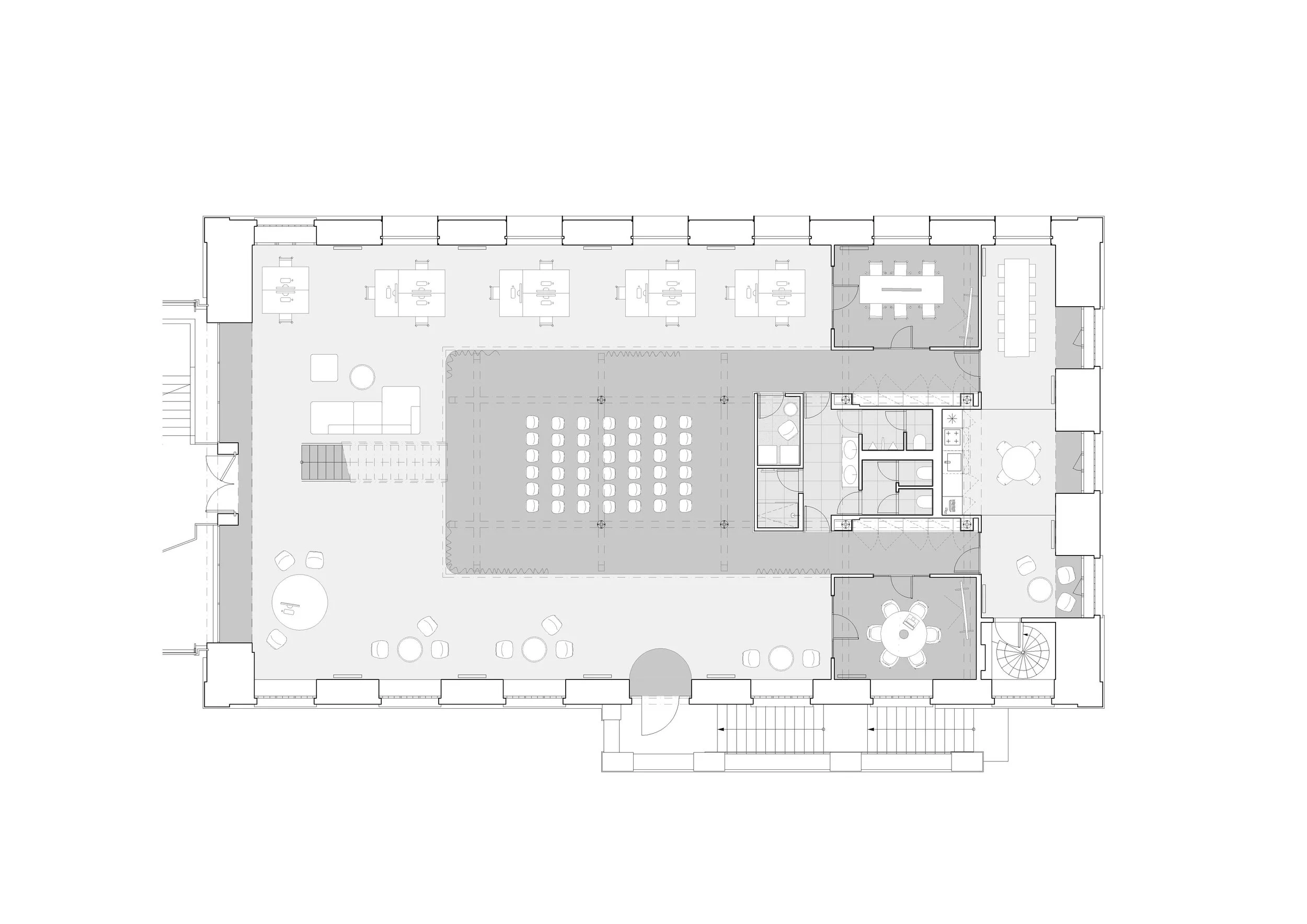
LB studio office
LB studio
Bratislava
2021
Fotografie: Nora a Jakub
Ocenenie INSAID AWARDS 2023 / pracovisko
.
LB studio
Bratislava
2021
Fotografie: Nora a Jakub
Ocenenie INSAID AWARDS 2023 / pracovisko
.